Apartment in a period villa, Griante, ID 68

  1. Home
  2. / Griante
  3. / Apartment
  4. / Apartment in a period villa, Griante, ID 68
Good deal
540 000 ID: 68

Characteristics

Bedrooms
4
Area, m²
190
Bathrooms
2
Loggias
1
Year of construction
1900
Property condition
In need of renovation
Heating
Independent heating
Energy class
G
Distance to airport
87.0 km
To Como
31.0 km
To Lugano (Switzerland)
34.0 km
To Milan
85.0 km
To Milan Malpensa airport
87.0 km

Property features

Please note:

  • Prices do not include government taxes, real estate agency fees, costs of notary practices.
  • The map indicates only the city or the area in which the property is located, but not the exact address.
  • The information and data reported here are purely indicative and have no contractual value.

Description

Chat on WhatsApp

Experience the magic of Lake Como in this charming apartment located within a period villa, just 20 meters from the lake.

Located in the renowned town of Cadenabbia, this unique property offers an unparalleled opportunity for those seeking a prestigious investment or an unforgettable holiday residence.
Features and Interiors:
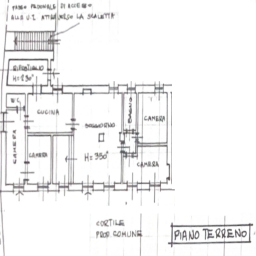
• Spacious living room with a cozy fireplace, perfect for entertaining.
• 4 bedrooms and 2 bathrooms to comfortably accommodate family and guests.
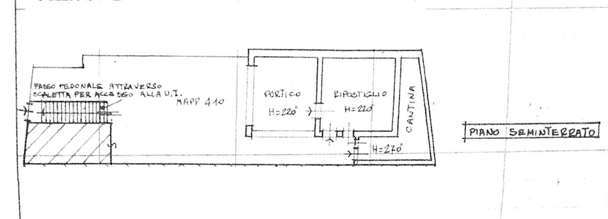
• Eat-in kitchen and spacious basement for maximum functionality.
• Enchanting outdoor spaces: enjoy the porch, private garden, and access to the shared garden.
• Conveniences: cellar and laundry room.
Unique Investment Potential:
Thanks to its independent entrances, the apartment can easily be divided into three separate one-bedroom apartments, creating an extremely profitable vacation rental business. A perfect solution for maximizing returns.
Prime Location:
• 100 meters from the ferry dock for Bellagio and the other pearls of the lake.
• 100 meters from the breathtaking gardens of Villa Carlotta.
• Just steps from restaurants, cafes, and all necessary amenities.
The property has independent gas heating.
The information and data provided are purely indicative and non-binding.

Contact us for an Exclusive Viewing:

Are you interested in discovering this gem on Lake Como in person?
Best Como Immobiliare
Agent: Pietro Bianchini
Phone/WhatsApp: +39 338 261 6725
Email: pietro@bestcomo.com

Video

Location

Floor plan

Send inquiry
Number of results: 166