Apartment to renovate, Como city center, ID 159

  1. Home
  2. / Como
  3. / Apartment
  4. / Apartment to renovate, Como city center, ID 159
197 000 ID: 159

Characteristics

Bedrooms
1
Area, m²
61
Bathrooms
1
Year of construction
1970
Property condition
In need of renovation
Heating
Central
Energy class
G
Distance to airport
59.0 km
To Lugano (Switzerland)
34.0 km
To Milan
55.0 km
To Milan Malpensa airport
59.0 km

Please note:

  • Prices do not include government taxes, real estate agency fees, costs of notary practices.
  • The map indicates only the city or the area in which the property is located, but not the exact address.
  • The information and data reported here are purely indicative and have no contractual value.

Description

Chat on WhatsApp

Como – Attic to renovate, a short walk from the walled city and the station.

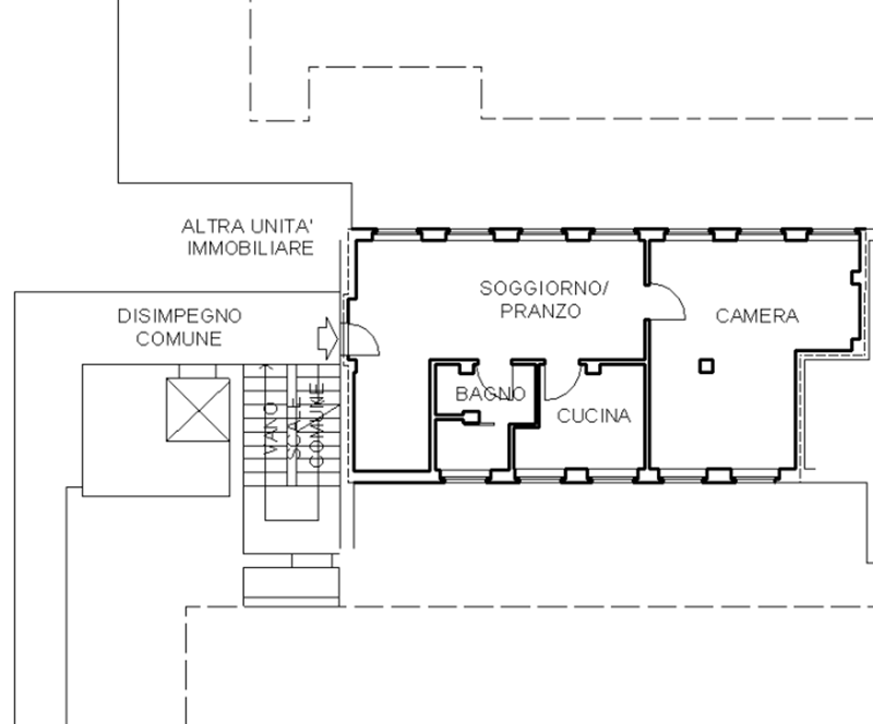
In a recently renovated 1970s building, we offer for sale a habitable attic on the fifth floor (room height 2.22 meters), comprising a living room, kitchen, bedroom, and bathroom.
The apartment is served by an elevator to the fourth floor, with a short flight of stairs to climb.

Covered parking space available.

Strengths:
•⁠ ⁠Strategic location: about 400 meters from the lake and close to the walled city.
•⁠ ⁠Close to Como San Giovanni station, with direct connections between Milan and Lugano.
•⁠ ⁠Open views of Baradello Castle and the surrounding mountains.

•⁠ ⁠An excellent solution for both cross-border commuters seeking a convenient base and those seeking an investment to generate income.
The property requires internal renovation.
Cadastral area: 61 sq m.
Central heating.
Energy class: G, 829.39 kWh/m2 per year.

The information and data provided here are purely indicative and have no contractual value.

Are you interested in this listing?

Mobile/Whatsapp: +393382616725

Email: pietro@bestcomo.com

Best Como Immobiliare – local real estate agent

Location

Floor plan

Send inquiry
Number of results: 163