Nuovo appartamento moderno, Tremezzina, ID 80B4

  1. Casa
  2. / Tremezzina
  3. / Appartamento
  4. / Nuovo appartamento moderno, Tremezzina, ID 80B4
Prezzo su richiesta ID: 80B4

Caratteristiche

Camere da letto
2
Superficie, mq
94
Bagni
2
Balconi
1
Anno di costruzione
2027
Stato
Nuove costruzioni
Riscaldamento
Centrale
Classe energetica
A
Distanza dall'aeroporto
80.0 km
Como
28.0 km
Lugano (Svizzera)
34.0 km
Milano
76.0 km
Milano Malpensa aeroporto
80.0 km

Proprietà caratteristiche

Notare che:

  • I prezzi non includono le tasse governative, il premio dell'agenzia immobiliare, i costi delle pratiche notarili.
  • La mappa indica solo la città o la zona in cui si trova la proprietà, ma non l'indirizzo esatto.
  • Le informazioni e i dati qui riportati hanno valore puramente indicativo e non hanno valore contrattuale.

Descrizione

Chat on WhatsApp

Vista lago mozzafiato!
Vivi la magia del Lago di Como in un nuovo appartamento moderno, situato in una posizione privilegiata a Tremezzina, a pochi passi dal lago e vicino a tutti i servizi.
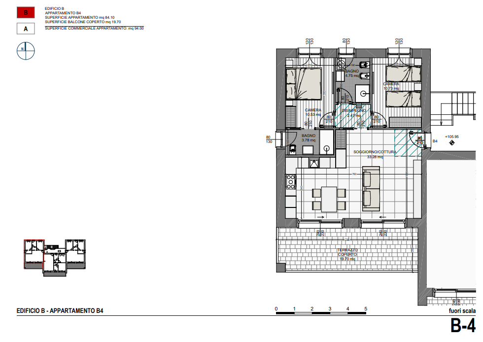
Questo appartamento, al piano primo, offre:
Ampio soggiorno con angolo cottura, 2 camere da letto, 2 bagni. (metri quadrati 84,10).
Spazi esclusivi e comfort:
Terrazza coperta (metri quadrati 19,70).
Piscina condominiale e solarium.
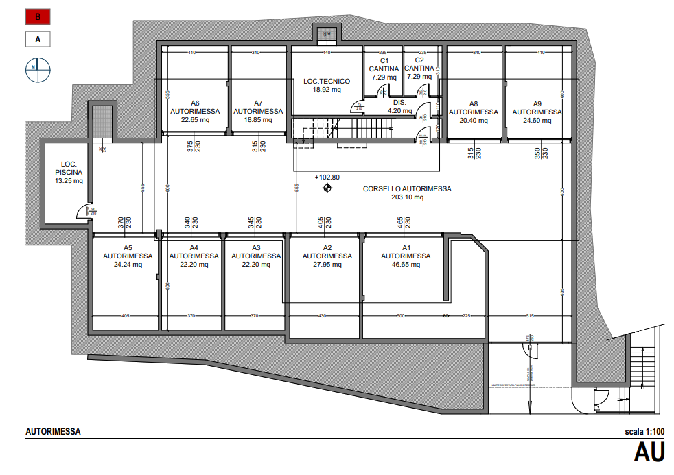
Disponibilità di autorimessa privata e cantina.
Tecnologia e efficienza:
Classe energetica A4
Impianto centralizzato con pompa di calore, riscaldamento a pavimento e raffrescamento.
Impianto fotovoltaico e contabilizzatori autonomi.
Serramenti in PVC con triplo vetro e oscuranti motorizzate.
Condominio con 12 appartamenti.
Consegna prevista: aprile 2027.
Contattaci subito per maggiori informazioni o per organizzare una presentazione dedicata!
Cellulare/WhatsApp: +39 338 2616725
E-mail: pietro@bestcomo.com
Best Como Immobiliare – il tuo agente immobiliare di fiducia sul Lago di Como.
Le informazioni e i dati hanno valore puramente indicativo e non sono contrattuali.

Località

Planimetria

Richiesta
Numero di risultati: 164